Casa indipendente in vendita

Lessona, Via IV Novembre
€ 130.000
6 locali 6 locali
180 Mq 180 Mq
2 bagni 2 bagni

Casa indipendente in vendita

Lessona, Via IV Novembre

Descrizione annuncio

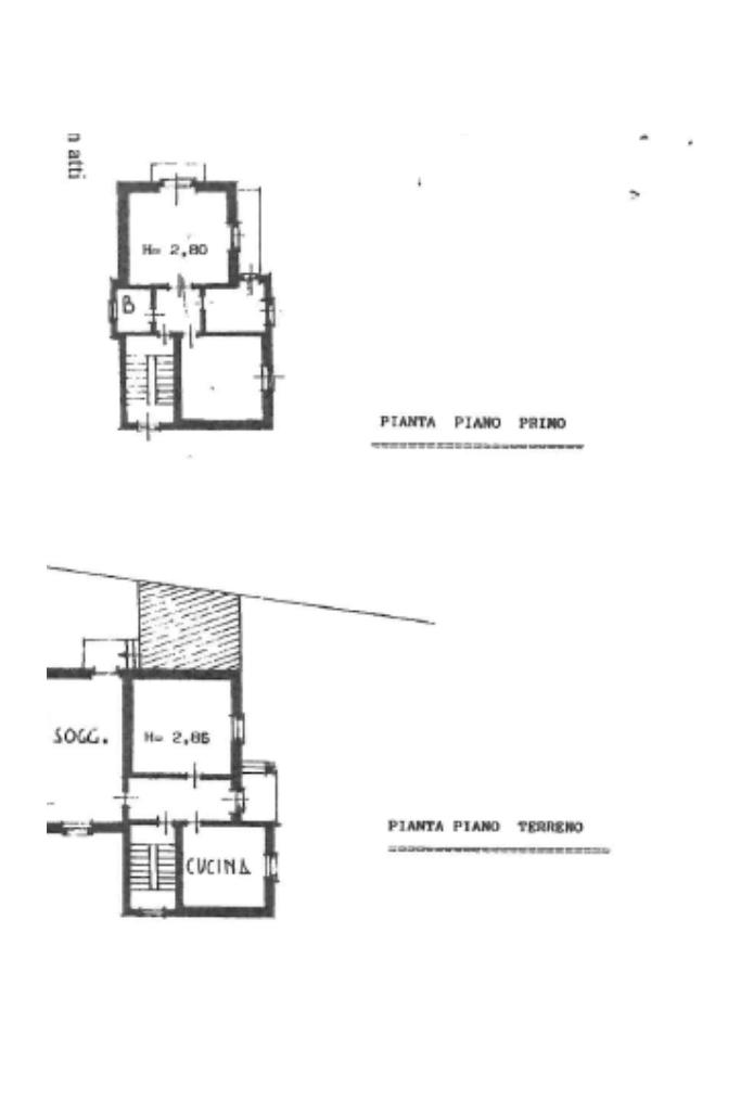
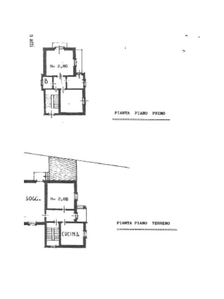
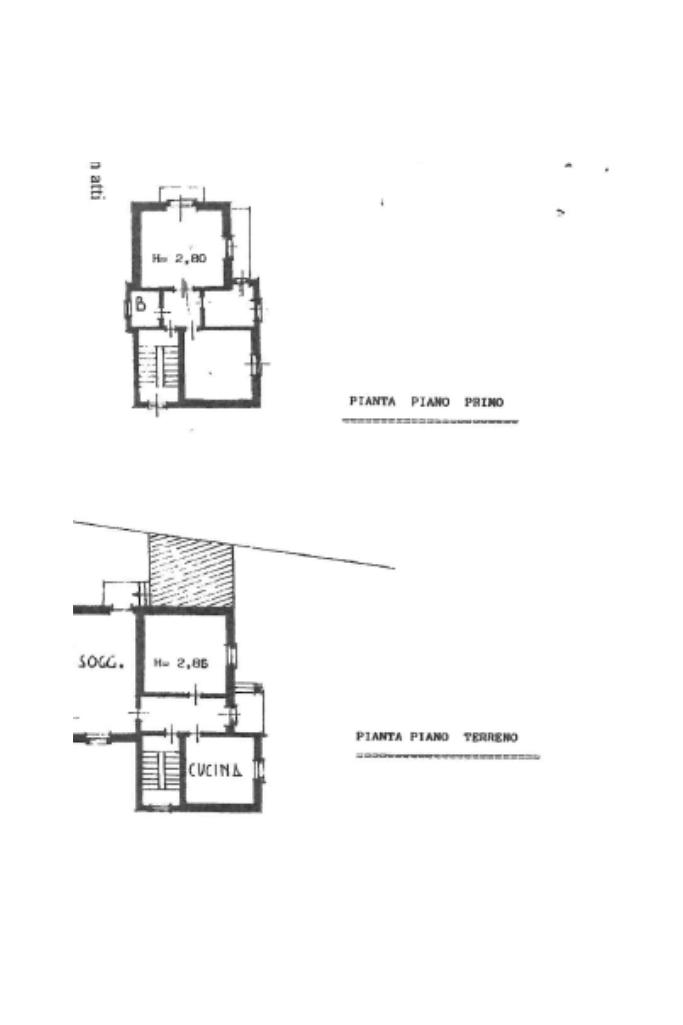
Situata nel tranquillo comune di Lessona, questa casa indipendente offre una soluzione abitativa ideale per chi desidera personalizzare la propria abitazione sfruttando ampi spazi. Il piano abitativo si sviluppa su due livelli: al piano terra, l'ingresso accoglie in un ambiente luminoso composto da cucina, soggiorno, sala da pranzo e un bagno con doccia. Al piano superiore, accessibile tramite una scala interna, due camere da letto e un ulteriore bagno garantiscono privacy e funzionalità. La proprietà è circondata da un ampio giardino, perfetto per momenti di relax all'aperto o per attività all'aria aperta. Un box auto offre comodità e sicurezza per il parcheggio. Inoltre, il piano seminterrato dispone 4 locali deposito, un locale caldaia e un lavatoio, utili per organizzare al meglio gli spazi. Gli infissi installati sono in vetro singolo e legno e il riscaldamento è a metano a termoconvettori. Situata in una zona residenziale, questa casa rappresenta un'opportunità interessante per chi desidera vivere in un contesto sereno e ben collegato

Ape in corso

Mostra tutto

Nelle vicinanze

Trasporto pubblico Trasporto pubblico
Cossato
Cossato
2,5 Km
Cossato (Via Mazzini-Dir 1)
Cossato (Via Mazzini-Dir 1)
2,2 Km
Ricariche auto elettriche Ricariche auto elettriche
Villa Guelpa B&B
2,7 Km
Municipio di Quaregna | EnelX
3,0 Km
Scuole Scuole
Liceo di Cossato
820 m
Scuola dell'Infanzia Masseria
1,7 Km
Scuola dell'Infanzia
1,7 Km
Scuola Primaria
1,7 Km
Scuola Secondaria primo grado
1,8 Km
Farmacia Farmacia
Farmacia Dottor Friolotto
1,3 Km
Farmacia Lodigiani
1,6 Km
Farmacia San Raffaele
1,8 Km
Farmacia Viana
1,9 Km
Farmacia
2,6 Km
Supermercati Supermercati
U2 ELDP
1,5 Km
LIDL
1,6 Km
Supermercati
1,8 Km
Penny Market
2,5 Km
Negozi Negozi
Crai Aglietti
1,3 Km
Pane e... Golosità
1,3 Km
Negozi
1,8 Km
Bar Bar
Bar Coclicò
1,2 Km
Bar El Che
1,3 Km
La Cremeria
1,6 Km
Ristoranti Ristoranti
Agriturismo La Prevostura
1,6 Km
Malvarosa
1,7 Km
La Bussola
2,0 Km
Ristorante Pizzeria Pub "New Mary Laiv"
2,1 Km
LocoMotion
2,2 Km
Mostra tutto

Caratteristiche

Rif.:
61101329
Piano:
Terra con giardino di 3
Totale piani:
3
Box:
1
Posti auto:
2
Balconi:
3
Mostra tutto
Prezzo Prezzo
€ 130.000
Rata mutuo Rata mutuo
€ 599 / mese
Spese annue Spese annue
€ 0
Proponi il tuo prezzoProponi il tuo prezzo

Classe Energetica

E
E
E
E
E
E
E
E
E
EP globale non rinnovabile:
291.21 kW h/m² anno
EP globale rinnovabile:
0.00 kW h/m² anno
EP invernale del fabbricato:
EP estiva del fabbricato:
Anno di costruzione:
1970
Riscaldamento:
Autonomo
Tipo impianto:
Ad aria
Tipo alimentazione:
Metano

Ti interessa visionare l'immobile?

Fissa un appuntamento  Fissa un appuntamento

Richiedi informazioni

* Questi campi sono obbligatori

Calcola il tuo mutuo

Semplice e senza impegno
Anticipo

( % )
Mutuo

( % )

pochi semplici passi

inserisci i tuoi dati
Questionario completato
Grazie per aver richiesto un appuntamento senza impegno con un nostro Consulente del Credito e Assicurativo.

Hai inserito correttamente tutti i dati necessari e a breve riceverai una e-mail con un link da convalidare per inviare i tuoi dati.
Affiliato
Studio Cossato Uno Sas
Via Alessandro Lamarmora, 5 13836 Cossato (BI)

Il nostro staff


  • Francesco Capietto
    Affiliato

  • Francesca Guala
    Coordinatrice

  • Daniele Stellato
    Responsabile
Via Alessandro Lamarmora, 5 13836 Cossato (BI)
Zona: Cossato
Mostra su mappa
Orari: LUN-VENERDI' 9.00-12.30/14.30-19.30 SAB 9.00-12.30/ 14.30-18.00 DOM CHIUSO
Affiliato
Studio Cossato Uno Sas
Via Alessandro Lamarmora, 5 13836 Cossato (BI)

2025 Tecnocasa Franchising S.p.A. - P. IVA 08365160152 - Via Monte Bianco 60/A 20089 Rozzano (MI). Ogni agenzia ha un proprio titolare ed è autonoma. Privacy policy | Policy utilizzo | Cookie policy