Quadrilocale in vendita

Roasio, Via Torino
€ 70.000
4 locali 4 locali
110 Mq 110 Mq
1 bagno 1 bagno

Quadrilocale in vendita

Roasio, Via Torino

Descrizione annuncio

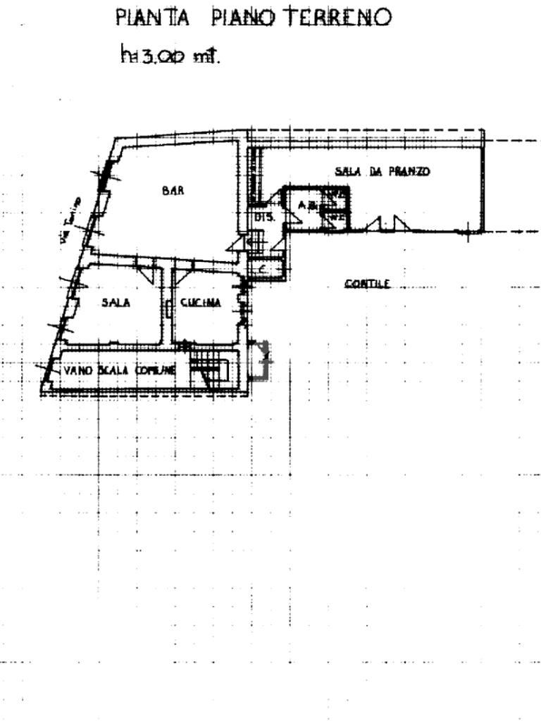
Nel centro di Roasio proponiamo in vendita un immobile al piano terra con giardino privato, attualmente accatastato come locale commerciale in quanto ex bar, chiuso recentemente. La proprietà rappresenta un’ottima opportunità per chi desidera realizzare un’abitazione su misura, grazie alla possibilità di effettuare il cambio di destinazione d’uso in residenziale. Gli spazi interni sono già ben distribuiti e facilmente adattabili a un appartamento. È presente una cucina, due locali fronte strada ideali per essere trasformati in camere da letto e un ampio ambiente interno che si presta perfettamente a diventare una luminosa zona giorno. Quest’ultimo dispone di un comodo ripostiglio e di accesso diretto al giardino, elemento che valorizza ulteriormente l’immobile e lo rende particolarmente adatto a chi cerca una soluzione con sfogo esterno. Il servizio igienico è già presente ma necessita di essere rivisto per un utilizzo abitativo, in quanto attualmente mancano il box doccia e il bidet. Gli infissi sono in doppio vetro e il riscaldamento è autonomo a metano, caratteristiche che garantiscono un buon comfort abitativo e una gestione efficiente dei consumi. Completano la proprietà un ripostiglio esterno situato nel giardino e un posto auto coperto all’interno di un box auto doppio condiviso. La posizione centrale consente di avere tutti i principali servizi a breve distanza, rendendo l’immobile ideale sia come abitazione principale sia come investimento. Soluzione interessante per chi desidera personalizzare gli spazi e vivere in una casa con giardino nel cuore del paese.

Le immagini che presentano l’arredamento sono state realizzate tramite intelligenza artificiale e hanno esclusivamente scopo illustrativo, al fine di offrire un’idea di come l’immobile potrebbe essere riorganizzato e arredato una volta completati gli interventi.

Mostra tutto

Nelle vicinanze

Farmacia Farmacia
Farmacia Seva
1,1 Km
Negozi Negozi
Negozi
70 m
La Piazzetta
120 m
Zanardi abbigliamento
600 m
La Bottega del Goloso
1,7 Km
Bar Bar
Pitstop
1,4 Km
Bar sport
2,6 Km
Bar la Cascina
2,9 Km
Ristoranti Ristoranti
Ristoranti
30 m
La Piola
1,2 Km
Ristorante Piane di Monolo
1,6 Km
Lo Scricciolo
1,7 Km
Mostra tutto

Caratteristiche

Rif.:
61159311
Piano:
Terra di 2
Totale piani:
2
Box:
1
Camere da letto:
2
Arredamento:
Assente
Mostra tutto
Prezzo Prezzo
€ 70.000
Rata mutuo Rata mutuo
€ 325 / mese
Spese annue Spese annue
€ 0
Proponi il tuo prezzoProponi il tuo prezzo

Classe Energetica

F
F
F
F
F
F
F
F
F
EP globale non rinnovabile:
211.41 kW h/m² anno
EP globale rinnovabile:
1.04 kW h/m² anno
EP invernale del fabbricato:
EP estiva del fabbricato:
Anno di costruzione:
1960
Riscaldamento:
Autonomo
Tipo impianto:
A radiatori
Tipo alimentazione:
Metano

Ti interessa visionare l'immobile?

Fissa un appuntamento  Fissa un appuntamento

Richiedi informazioni

Clicca su Leggi per aprire l'informativa
* Questi campi sono obbligatori

Calcola il tuo mutuo

Semplice e senza impegno
Anticipo

( % )
Mutuo

( % )

pochi semplici passi

inserisci i tuoi dati
Questionario completato
Grazie per aver richiesto un appuntamento senza impegno con un nostro Consulente del Credito e Assicurativo.

Hai inserito correttamente tutti i dati necessari e a breve riceverai una e-mail con un link da convalidare per inviare i tuoi dati.
Affiliato
Studio Cossato Uno Sas
Via Alessandro Lamarmora, 5 13836 Cossato (BI)

Il nostro staff


  • Francesco Capietto
    Affiliato

  • Francesca Guala
    Coordinatrice

  • Daniele Stellato
    Responsabile
Via Alessandro Lamarmora, 5 13836 Cossato (BI)
Zona: Cossato
Mostra su mappa
Orari: LUN-VENERDI' 9.00-12.30/14.30-19.30 SAB 9.00-12.30/ 14.30-18.00 DOM CHIUSO
Affiliato
Studio Cossato Uno Sas
Via Alessandro Lamarmora, 5 13836 Cossato (BI)

2026 Tecnocasa Franchising S.p.A. - P. IVA 08365160152 - Via Monte Bianco 60/A 20089 Rozzano (MI). Ogni agenzia ha un proprio titolare ed è autonoma. Privacy policy | Policy utilizzo | Cookie policy